A Framework for Collaborative Research

The Biosciences Partnership Building (BSPB) is located on the Phoenix Biomedical Campus. It is a 10-story academic lab building and an addition to a medical school, also by CO Architects, the Health Sciences Education Building (HSEB). BPSB was my first professional project after graduating with my architecture degree. It offered the opportunity to understand and participate in the design process for a large, high-tech building on a contractor design-assist schedule. I was also able to apply the design computation skills I had developed in school to lead the process of facade panelization.

CO Architects project page

Read the Dezeen feature

Work completed at CO Architects. Photos by Bill Timmerman.

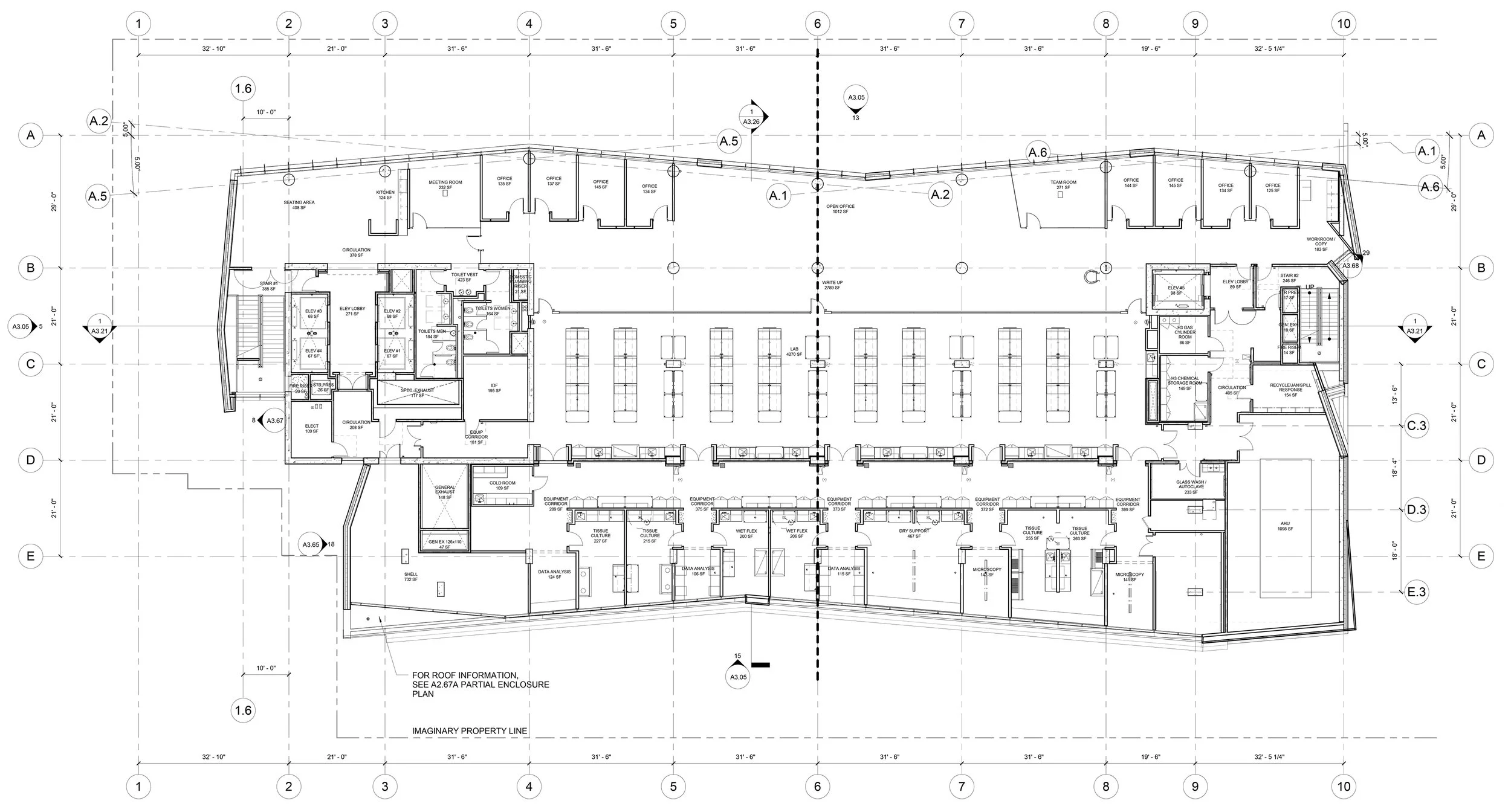
Completed in 2018, BSPB is a 10-story, 245,000 square foot academic research lab located on the University of Arizona’s 28-acre Phoenix Biomedical Campus. The project was completed on a contractor design-assist schedule and achieved LEED Silver certification.

Designed to adapt to the particular needs of future users, the building is organized as a framework of modular lab spaces and supporting program elements.

Each lab floor accommodates different wet, dry, and flex lab configurations with minimal additional tenant-improvement work needed. Each pair of lab floors has a shared social space for meetings and collaboration, including a small kitchen. The ground floor supports an academic conference center and the top floor holds an administrative suite.

I developed the 3D and 2D CAD drawings for the 2-story ‘front porch’ canopy from a parametric model that enabled an iterative design approach and collaboration with the structural engineer for member sizing and layout.

Facade Panelization

An addition to an adjacent medical school building, BSPB expanded the formal complexity of the existing facade and copper panel cladding system while incorporating computational logic and shading strategies that contributed to the building’s LEED Silver certification.

Utilizing visual scripting tools Grasshopper and Dynamo, I led a small team in developing a workflow for laying out the copper-panel facade panels, automating most steps from building out the 3D model for fabricator coordination to producing 2D CAD documentation for our contract drawings.

Previous
Previous

Research Lab in LEO

Next
Next

Address at Harbor Point